top of page

三合一大樓宿舍

  • 2024年6月20日
  • 讀畢需時 1 分鐘

已更新:2024年7月14日

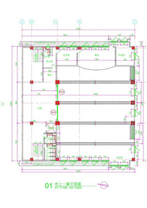
地點:尼泊爾七公頃-摩西計畫土地規劃

計劃多元化使用這棟建築,一樓大會廳,二樓男宿,三樓女宿,四樓給來訪的來賓用。







留言

評等為 0(最高為 5 顆星)。
暫無評等

新增評等
bottom of page