top of page

頂樓空中花園餐廳

  • 2024年7月2日
  • 讀畢需時 1 分鐘

已更新:2024年7月23日

地點:尼泊爾

計畫在頂樓做一個很有特色的設計,因為剛好頂樓的方向剛好可以看到很美的喜馬拉雅山的美景



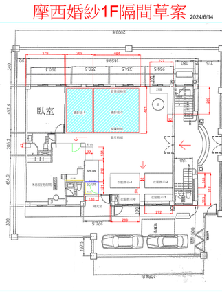
一樓則是婚紗會館


我們最在頂樓的設計,計畫開一家空中花園餐廳,計畫在兩旁還可以植物點綴,還有藤蔓的設計。


隨著現實的考量慢慢地修改,加寬了兩旁,感覺滿像蒙古包的,不過還蠻可愛的,個人滿喜歡



順便連水塔也處理一下



接下來選材質還有顏色,我個人還是比較喜愛白色,不過也模擬個灰色看看效果,整個很有科技感


不過最後還是用白色



頂樓部分目前尼泊爾同步施工進度



尼泊爾當地鐵工實際估算的圖



室內空間加大

門加寬

試著模擬室內材質


留言

評等為 0(最高為 5 顆星)。
暫無評等

新增評等
bottom of page